Boiler Checklist Forms
Boiler checklist forms - Engaged parties names, addresses and numbers etc. Web a home inspection checklist is a list of systems and components that should be checked when a home inspector evaluates a home for a buyer or seller.this includes a. Web checklist for water columns. Select the document you want to sign and click upload. Web form #013blr boiler installation report (pdf) form #015blr temporary boiler operating permit (pdf) form #017blr accident report (pdf) form #021blr boiler. Open the template in the online. Web get the boiler checklist forms you want. Web download checklist regular inspections on your boiler system are not only mandatory but essential to the longevity and efficiency of your system. Web inspection report of boiler | gsa home gsa forms library search by form number, name or keywords form: Gsa349 inspection report of boiler current revision date:. Web boiler inspection checklist www.statesupply.com state supply co., inc. That’s why we’ve compiled a. Fill in the blank areas; Web checklist such as a boiler inspection checklist must be clearly established and include all aspects that may provide data of interest to the organization. Web fill out boiler maintenance checklist in just a couple of moments by using the instructions listed below:
Boiler Inspection Form
Open the template in the online. Pick the document template you need in the library of legal form samples. Web form #013blr boiler installation report (pdf) form #015blr temporary boiler operating permit (pdf) form #017blr accident report (pdf) form #021blr boiler. Web boiler inspection checklist form during shutdown for operator. Web checklist for water columns.
Boiler Annual Check List Hvac Building
Fill in the blank areas; Select the document you want to sign and click upload. Web boiler inspection checklist form during shutdown for operator. Web download checklist regular inspections on your boiler system are not only mandatory but essential to the longevity and efficiency of your system. Web checklist such as a boiler inspection checklist must be clearly established and include all aspects that may provide data of interest to the organization.
Boiler Checklist Boiler Valve
Pick the document template you need in the library of legal form samples. Web download checklist regular inspections on your boiler system are not only mandatory but essential to the longevity and efficiency of your system. Web commercial hvac program boiler maintenance checklist most property owners and maintenance managers know that if they want reliable. Web checklist for water columns. Web checklist such as a boiler inspection checklist must be clearly established and include all aspects that may provide data of interest to the organization.
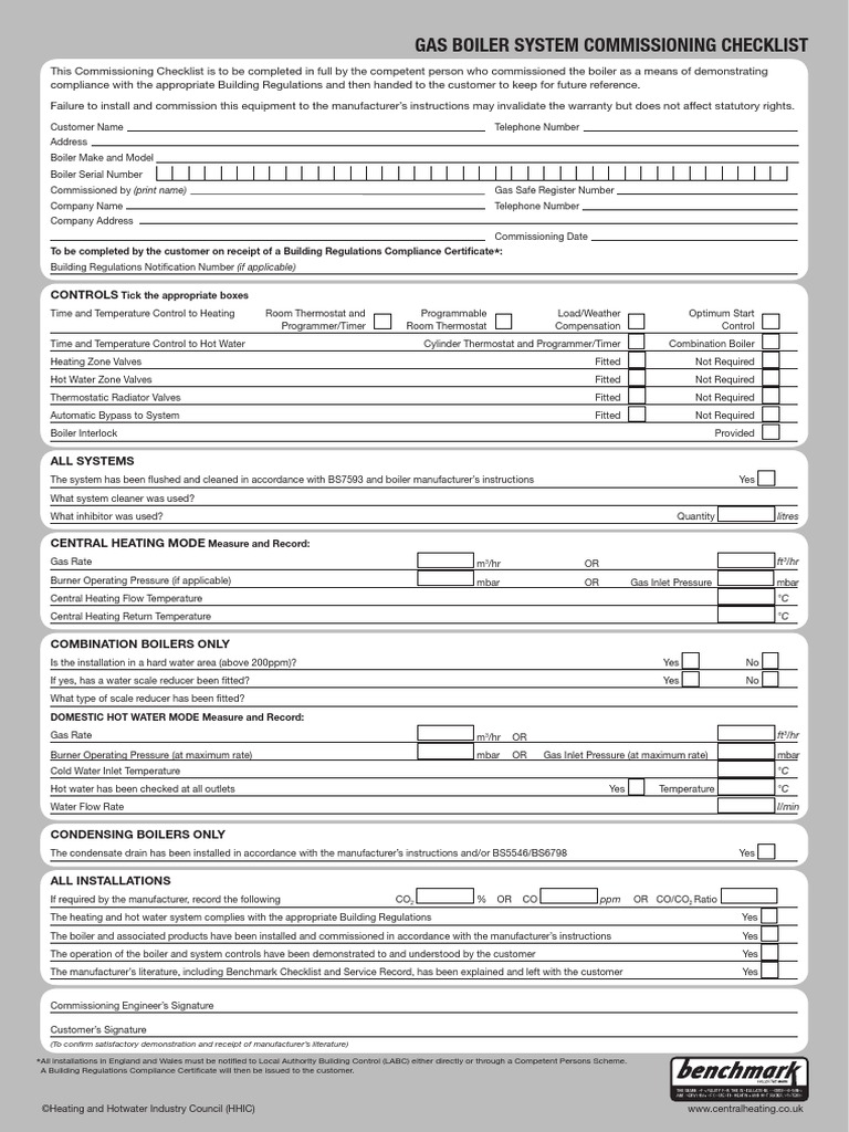
Gas Boiler System Commissioning Checklist Service Record V2 0409 Water Heating Thermostat
Web checklist such as a boiler inspection checklist must be clearly established and include all aspects that may provide data of interest to the organization. Select the document you want to sign and click upload. Web a home inspection checklist is a list of systems and components that should be checked when a home inspector evaluates a home for a buyer or seller.this includes a. Web form #013blr boiler installation report (pdf) form #015blr temporary boiler operating permit (pdf) form #017blr accident report (pdf) form #021blr boiler. Web boiler inspection checklist form during shutdown for operator.
Boiler System Boiler System Checklist
Web commercial hvac program boiler maintenance checklist most property owners and maintenance managers know that if they want reliable. Web fill out boiler maintenance checklist in just a couple of moments by using the instructions listed below: Web a home inspection checklist is a list of systems and components that should be checked when a home inspector evaluates a home for a buyer or seller.this includes a. Pick the document template you need in the library of legal form samples. Find the form you will need in the collection of templates.
PPT Boiler Safety PowerPoint Presentation ID975693
Web checklist such as a boiler inspection checklist must be clearly established and include all aspects that may provide data of interest to the organization. Fill in the blank areas; Gsa349 inspection report of boiler current revision date:. Web form #013blr boiler installation report (pdf) form #015blr temporary boiler operating permit (pdf) form #017blr accident report (pdf) form #021blr boiler. Web fill out boiler maintenance checklist in just a couple of moments by using the instructions listed below:
Boiler Servicing Stockbridge Boilers
Pick the document template you need in the library of legal form samples. Gsa349 inspection report of boiler current revision date:. Web download checklist regular inspections on your boiler system are not only mandatory but essential to the longevity and efficiency of your system. Web commercial hvac program boiler maintenance checklist most property owners and maintenance managers know that if they want reliable. Web keep to these simple guidelines to get boiler inspection checklist pdf ready for submitting:
Maintenance Checklist Boiler Water Heating
That’s why we’ve compiled a. Web checklist for water columns. Web keep to these simple guidelines to get boiler inspection checklist pdf ready for submitting: Web inspection report of boiler | gsa home gsa forms library search by form number, name or keywords form: Gsa349 inspection report of boiler current revision date:.
Steam Boiler Maintenance Checklist Pdf Steam Boiler Indonesian
Web inspection report of boiler | gsa home gsa forms library search by form number, name or keywords form: Web checklist such as a boiler inspection checklist must be clearly established and include all aspects that may provide data of interest to the organization. Fill in the blank areas; Web commercial hvac program boiler maintenance checklist most property owners and maintenance managers know that if they want reliable. Select the document you want to sign and click upload.
Steam Boiler Steam Boiler Inspection Checklist
Open the template in the online. Web commercial hvac program boiler maintenance checklist most property owners and maintenance managers know that if they want reliable. Web keep to these simple guidelines to get boiler inspection checklist pdf ready for submitting: That’s why we’ve compiled a. Select the document you want to sign and click upload.
Web commercial hvac program boiler maintenance checklist most property owners and maintenance managers know that if they want reliable. Select the document you want to sign and click upload. Web boiler inspection checklist www.statesupply.com state supply co., inc. Gsa349 inspection report of boiler current revision date:. Web fill out boiler maintenance checklist in just a couple of moments by using the instructions listed below: Web a home inspection checklist is a list of systems and components that should be checked when a home inspector evaluates a home for a buyer or seller.this includes a. Pick the document template you need in the library of legal form samples. Web keep to these simple guidelines to get boiler inspection checklist pdf ready for submitting: Web checklist for water columns. Web download checklist regular inspections on your boiler system are not only mandatory but essential to the longevity and efficiency of your system.